1 概述
DDS/DDSF1352、DTS/DTSF/DTSD1352(ADL)系列導軌式安裝電能表是安科瑞電氣集多年的電表設計經驗,所推出的新一代微型電能表。
該電能表采用LCD顯示,可進行時鐘、費率時段等參數設置,并具有電能脈沖輸出功能;可用RS485通訊接口與上位機實現數據交換,極大地方便了用電自動化管理。
該電能表具有體積小巧、精度高、可靠性好、安裝方便等優點,性能指標符合國標GB/T 17215、GB/T 17883和電力行業標準DL/T 614對電能表的各項技術要求。
2 產品規格
| 產品型號 |
準度等級 |
額定電壓 |
電流規格 |
脈沖常數 |
| DDS1352(ADL10) |
1 |
220V |
5(30)A |
3200 imp/kWh |
| DDSF1352 |
1.5(6)A |
12800imp/kWh |
| (ADL100) |
5(20)A |
3200 imp/kWh |
| |
10(40)A |
1600 imp/kWh |
| |
20(80)A |
800 imp/kWh |
| DTS1352/ |
1 |
3×220/380V |
3×1.5(6)A |
6400imp/kWh |
| DTSF1352 |
3×5(20)A |
1600imp/ kWh |
| (ADL300) |
3×10(40)A |
800imp/ kWh |
| |
3×20(80)A |
400imp/ kWh |
| DTSD1352 |
0.5 |
3×220/380V |
3×1.5(6)A |
6400imp/kWh |
| (ADL3000) |
3×5(20)A |
1600imp/ kWh |
| |
3×10(40)A |
800imp/ kWh |
| |
3×20(80)A |
400imp/ kWh |
3 技術參數
| 項目 |
技術指標 |
| DDS1352 |
DDSF1352 |
DTS/DTSF1352 |
DTSD1352 |
| (ADL10) |
(ADL100) |
(ADL300) |
(ADL3000) |
| 精度等級 |
有功:1級 |
有功:0.5級無功:1級 |
| 額定電壓Un |
220V |
3×220/380V |
| 電流規格 |
5(30)A |
1.5(6)A、5(20)A、10(40)A、20(80)A |
| 工作電壓 |
正常工作電壓范圍:0.9~1.1Un, |
| 極限工作電壓范圍:0.7~1.2Un |
| 參比頻率 |
45Hz或65Hz |
| 起動電流 |
直接接入 |
0.004Ib |
| 經CT接入 |
0.002In |
| 功耗 |
電壓線路 |
小于等于5VA/相 |
| 電流線路 |
小于4VA/相 |
| 電能脈沖輸出 |
脈沖寬度:80ms±20ms |
| 光耦隔離,集電極開路輸出 |
| 數字通信 |
RS485,MODBUS-RTU(其他協議可定制) |
| 時鐘誤差 |
小于等于0.5s/d |
| 溫度范圍 |
正常工作溫度:-10℃~+45℃, |
| 極限工作溫度:-20℃~+55℃, |
| 存儲溫度: -40℃~+70℃ |
| 相對濕度 |
小于等于95%(無凝露) |
| 外型尺寸(長×寬×高) |
18.0×90.3×63.1(mm) |
76×89×74(mm) |
126×89×74(mm) |
| 平均無故障工作時間(h) |
大于等于50000 |
4 安裝與接線
4.1安裝外形圖及接線圖
4.1.1 外形尺寸(單位:mm)
(1)DDS1352(ADL10)

正視圖 側視圖

圖1 DDS1352(ADL10)外形圖
(2)DDSF1352(ADL100)

正視圖 側視圖

圖2 DDSF1352(ADL100)外形圖
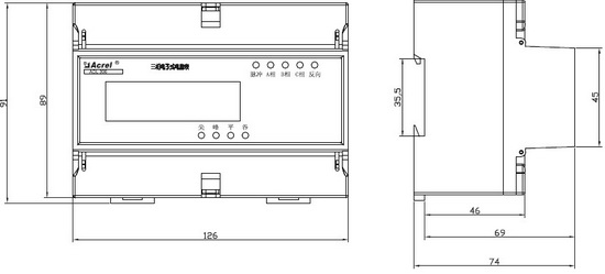
(3)DTS1352/DTSF1352(ADL300)

正視圖 側視圖

圖3 DTS1352/DTSF1352(ADL300)外形圖
(4)DTSD1352(ADL3000)

正視圖 側視圖

圖4 DTSD1352外形圖
4.1.2 安裝圖
DDS1352、DDSF1352、DTS/DTSF1352、DTSD1352(ADL)系列導軌式安裝電能表采用35mm標準導軌安裝方式,如下圖5

圖5 安裝圖
4.1.3 接線圖
DDS1352(ADL10)、DDSF1352(ADL100)、DTS/DTSF1352(ADL300)、DTSD1352(ADL3000)導軌式安裝
電能表支持直接接入和經電流互感器CT接入兩種接線方式,DDS1352(ADL10)支持直接接入方式。
(1)DDS1352(ADL10)

圖6 直接接入
(2)DDSF1352(ADL100)

圖7 直接接入

圖8 經CT接入
(3)DTS/DTSF1352(ADL300)

圖9 三相四線直接接入

圖10 三相四線經CT接入
(4)DTSD1352(ADL3000)
圖11 三相四線直接接入

圖12 三相四線經CT接入
注:實際接線時請以儀表側接線圖為準,其中,ADL3000的接線圖中變量6表示無功脈沖和時鐘脈沖的可選項,根據需要選擇相應的接線圖。
4.2 安裝注意事項及方法
4.2.1 電能表應裝在室內通風干燥的地方,采用35mm標準導軌方式安裝。
4.2.2 安裝接線時應按照電能表側面的接線圖進行接線,最好用銅接線頭接入。對于直接接入式電能表接線時應注意進線和出線方向,并將螺釘擰緊,避免因接觸不良而引起電能表工作不正常;經電流互感器接入式的電能表接線時應注意電流互感器次級的極性。